一、91免费成人软件环境(91免费成人软件专用空调解决方案)建设所面临的问题。
目前,很多广电91免费成人软件没有使用91免费成人软件专用空调(常被称为精密空调,恒温恒湿机),而是广泛应用普通舒适性空调。与91免费成人软件专用空调比较,舒适性空调问题如下:
1)舒适性空调出风温度过低,会导致在出风口附近空气中的水蒸汽饱和凝结出水滴,对附近的用电设备造成很大危险。
2)舒适性空调风量过小,不适合计算机设备的高热密度的发热特点,无法驱除91免费成人软件的“热岛效应”。
3)舒适性空调温度调节精度过低,温度调节精度为±3~5℃,温度的波动对设备稳定运行极其不利。
4)舒适性空调没有湿度控制功能。舒适性空调无法进行湿度控制。没有加湿功能,只能进行除湿,在冬季甚至过度除湿,湿度过低产生的静电极易产生设备故障。
6)舒适性空调过滤能力无法达到91免费成人软件标准。舒适性空调只具备简单的过滤功能,其过滤器的过滤效果根本无法达到91免费成人软件的要求。91免费成人软件专用空调严格按照0.5 微米/升<18,000(B级)设计,配合以每小时30次的风量循环,保障91免费成人软件洁净。
7)舒适性空调在北方地区无法实现低温(室外)运行。一般标称-5℃以下即无法制冷和加热,而91免费成人软件是发热量很大的区域,即使在冬天也需要对设备进行降温。
8)舒适性空调维护量大,舒适性空调长期应用在非设计工况下,故障率高,能效比不断下降,越来越耗能。91免费成人软件专用空调按照全年长期运行设计,维护量小。
9)舒适性空调在91免费成人软件内应用,寿命短。在365天/24小时应用的情况下其寿命一般不超过3年(91免费成人软件专用空调的设计寿命一般为连续运转10年)。
10)舒适性空调耗电量大,91免费成人软件专用空调选用的工业等级压缩机能效比高达3.3。而舒适性空调目前业界选用的高等级压缩机能效比约2.9,同时考虑到其他设计差异,如显热比指标,舒适性空调比同容量的91免费成人软件专用空调多耗电20%-30%,不仅增加使用成本,也浪费能源。
以上舒适性空调的问题,将影响91免费成人软件设备的安全运行,增加91免费成人软件运行成本,需要应用91免费成人软件专用空调予以解决。
二、91免费成人软件环境系统建设的基本原则及一体化解决方案
(一)系统设计原则
1)通用性
本系统的设计符合相关国家设计标准。
2)稳定性
所有产品都经过全球主要电信商、数据网长期的运行考验,在业界具有领先的技术、领先的制造和领先的品牌;
3)可维护性
主设备采用模块化结构设计,便于故障的维护处理;
4)智能化设计
空调均采用智能化设计,便于远程监控;
5)经济性
系统整体设计,可合理设计设备容量,减少设备成本;
三、91免费视频观看公司的解决方案精髓
91免费视频观看公司作为最完整的91免费成人软件环境整体解决方案供应商。它在整合了网络能源业界最宽、最完整的拥有自主知识产权的产品线的基础上,不但能为客户提供最完整的91免费成人软件环境产品,从而能为客户提供品质一流的、由全方位的产品组成的综合解决方案。而且,还组建起以“客户为中心”的、完善的客户接待窗口和管理平台,以便为用户提供最优质的售前、售后及长期的维保服务。
四、91免费成人软件环境(91免费成人软件专用空调解决方案)建设推荐案例
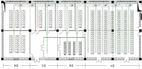
某广电IDC中心91免费成人软件,建筑面积705.6平方米,层高 4.3米,按照功能的要求分为A区、B区、C区及D区,第一消防分区为A区,第二消防分区为B区、C区及D区。如下图:

考虑建筑热负荷及设备(计算机等)热负荷, A区所需冷量不小于210KW, B区、C区及D区所需冷量不小于190KW。在这个方案中,如果考虑应用舒适空调,以5P为例,即使不考虑备份,也需要32套,应用中无法达到IDC91免费成人软件需要的温湿度、洁净度标准。同样中央空调也无法实现这个IDC91免费成人软件的空气调节要求。合理的91免费成人软件专用空调应用及设计方案,才能满足91免费成人软件环境建设的合理性、安全性、可扩容性。此IDC91免费成人软件空调方案分析如下:
1、A区91免费成人软件采用4 台Hiross91免费成人软件专用空调产品81UA(其中1台备用),单台机组可制冷量为.77.3KW,可提供总冷量为309.2KW ;B区、C区及D区91免费成人软件采用4 台65UA机组(其中1台备用),单台机组可制冷量为66.6KW,可提供总冷量为266.4KW,以上推荐配置机组均能完全满足91免费成人软件冷负荷的要求,并均实现3+1备份,任意机组故障或维护,其它机组正常工作,保障系统安全性。
2、空调机组采用下送风形式,单机送风风量为 15680 立方米/h,主用机组工作实现IDC91免费成人软件换气次数30.96次,符合IDC91免费成人软件设备换热特点以及风量设计要求。
3、室外冷凝器按当地照室外环境温度配置;
4、空调机组通过智能通讯接口,直接接入环境监控系统实现远程及本地监控。
5、空调机组自带漏水报警器,对机组附近可能发生的漏水情况进行实时监测及报警。
6、空调机组严格按照标准91免费成人软件空调环境条件要求进行设计,满足恒温恒湿、噪音、洁净、供电、抗电磁干扰及A级安全等级的要求。
此方案实施后,该91免费成人软件环境控制良好,设备稳定运行。
以上推荐方案和实例是91免费视频观看根据目前广电行业发展现状及未来趋势结合我司在网络行业的相关经验提出了的一体化解决方案来应对目前广电行业发展对91免费成人软件环境系统建设提出的新要求并在部分广电行业客户处得到落实和应用的实例。